107 Ellendale Place

Fredericksburg, TX 78624

107 Ellendale Place

Fredericksburg, TX 78624

$279,000

16 hours, 24 minutes on market
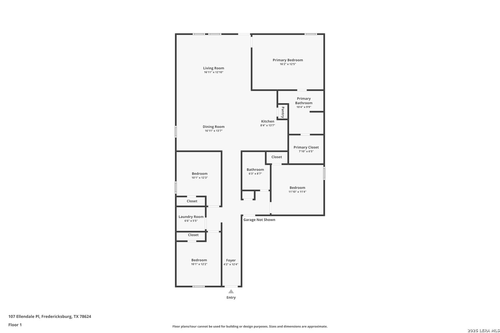
4 2 1667
Beds Baths Sq. Ft.
StatusNew
Year Built2025
CountyGillespie
FlooringCarpeting, Vinyl
Lot Size0.11
ParkingTwo Car Garage
Total Stories1
CoolingOne Central
School District Fredericksburg
Schools Fredericksburg, Fredericksburg, Fredericksburg
FireplaceNot Applicable
Property Type Single Family Detached
107 Ellendale Place Fredericksburg TX 78624

Property Details

Seller is willing to assist with closing costs or a rate buy-down through preferred lender with an acceptable offer. The Ramsey floorplan - This thoughtfully designed single-story home offers a functional open-concept layout ideal for modern living. Featuring 4 bedrooms and 2 bathrooms, the home provides flexible space for families, guests, or a home office. The kitchen flows seamlessly into the dining and family room, creating a bright and inviting central space perfect for everyday living and entertaining. The kitchen includes modern finishes, ample cabinetry, and a peninsula-style layout with a breakfast bar for added functionality. The private primary suite is tucked away in a quiet corner of the home and features an en-suite bath with walk-in shower and a spacious walk-in closet. Secondary bedrooms are located at the front of the home, offering added privacy and versatility. Additional highlights include energy-efficient construction, a two-car garage, and a desirable location in Fredericksburg with convenient access to shopping, dining, wineries, and the charm of the Texas Hill Country.




Courtesy of Marti Realty Group

This real estate information comes in part from the Internet Data Exchange/Broker Reciprocity Program. Information is deemed reliable but is not guaranteed.
© 2017 San Antonio Board of Realtors. All rights reserved.


,,