1210 Mills

Gatesville, TX 76528

1210 Mills

Gatesville, TX 76528

$240,000

  • lutterloh
  • MLS: #602118
2 months, 2 days, 10 hours, 8 minutes on market
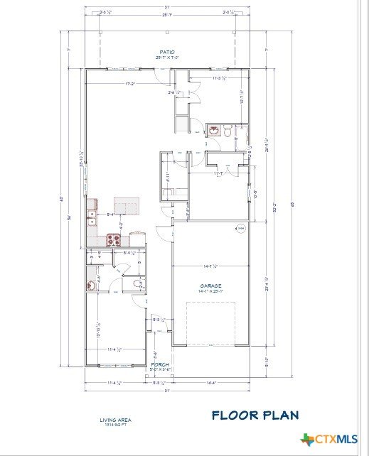
3 2 1314
Beds Baths Sq. Ft.
StatusActive
Year Built2026
CountyCoryell
Flooring
Lot Size0.295
Parking
Total Stories
CoolingCentralAir, Electric, OneUnit
School District Gatesville ISD
Schools
FireplaceNone
Property Type SingleFamilyResidence

Property Details

Charming new construction in the heart of Gatesville! Welcome to this beautifully crafted new construction home offering 1,314 sq ft of thoughtfully designed living space. This 3/2 features an isolated primary suite for added privacy and comfort. The open concept kitchen showcases granite countertops, stainless steel appliances, and flows seamlessly into the living and dining areas, perfect for everyday living and entertaining. Durable vinyl plank flooring runs throughout the home, and a full-size laundry room adds convenience. Exterior highlights include a covered porch, single-car garage, privacy fencing, and a spacious backyard with room to relax or play. The builder is offering a 2-10 home warranty. Don’t miss this opportunity to own a brand-new home at an exceptional price in Gatesville!




Courtesy of Front Porch Realty

This real estate information comes in part from the Internet Data Exchange/Broker Reciprocity Program. Information is deemed reliable but is not guaranteed.
© 2017 San Antonio Board of Realtors. All rights reserved.


,,