1332 Walker

Salado, TX 76571
Sold

1332 Walker

Salado, TX 76571

Contact For Sold Price
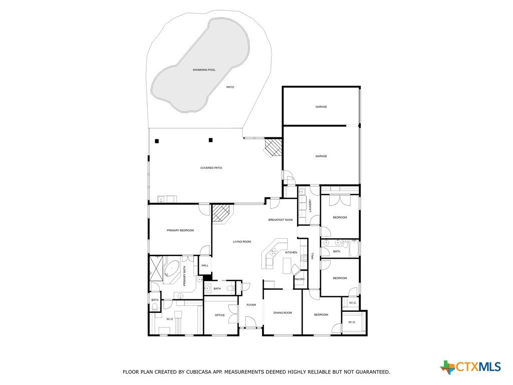
4 2.5 2533
Beds Baths Sq. Ft.
StatusSold
Year Built2008
CountyBell
Flooring
Lot Size0.584
Parking
Total Stories
CoolingCentralAir, Electric, OneUnit
School District Salado ISD
Schools
FireplaceLivingRoom, Masonry, Outside, RaisedHearth, Stone

Property Details

Welcome to this beautifully designed 4-bedroom, 2.5-bathroom home nestled on the prestigious Mill Creek Golf Course. This spacious residence features an open floor plan ideal for modern living, complete with a chef’s kitchen, two dining areas, and a comfortable living room perfect for entertaining. Enjoy working from home in the dedicated office with custom built-in bookshelves. Retreat to the lovely covered back porch overlooking the in-ground pool and the serene greens of the golf course — a perfect spot for morning coffee or evening relaxation. Additional highlights include a 3-car garage, a private backyard oasis with a sparkling pool, and plenty of space for gatherings.




Courtesy of Century 21 Bill Bartlett

This real estate information comes in part from the Internet Data Exchange/Broker Reciprocity Program. Information is deemed reliable but is not guaranteed.
© 2017 San Antonio Board of Realtors. All rights reserved.


,,