13391 Cedar Valley

Salado, TX 76571

13391 Cedar Valley

Salado, TX 76571

$899,900

4 months, 9 days, 9 hours, 56 minutes on market
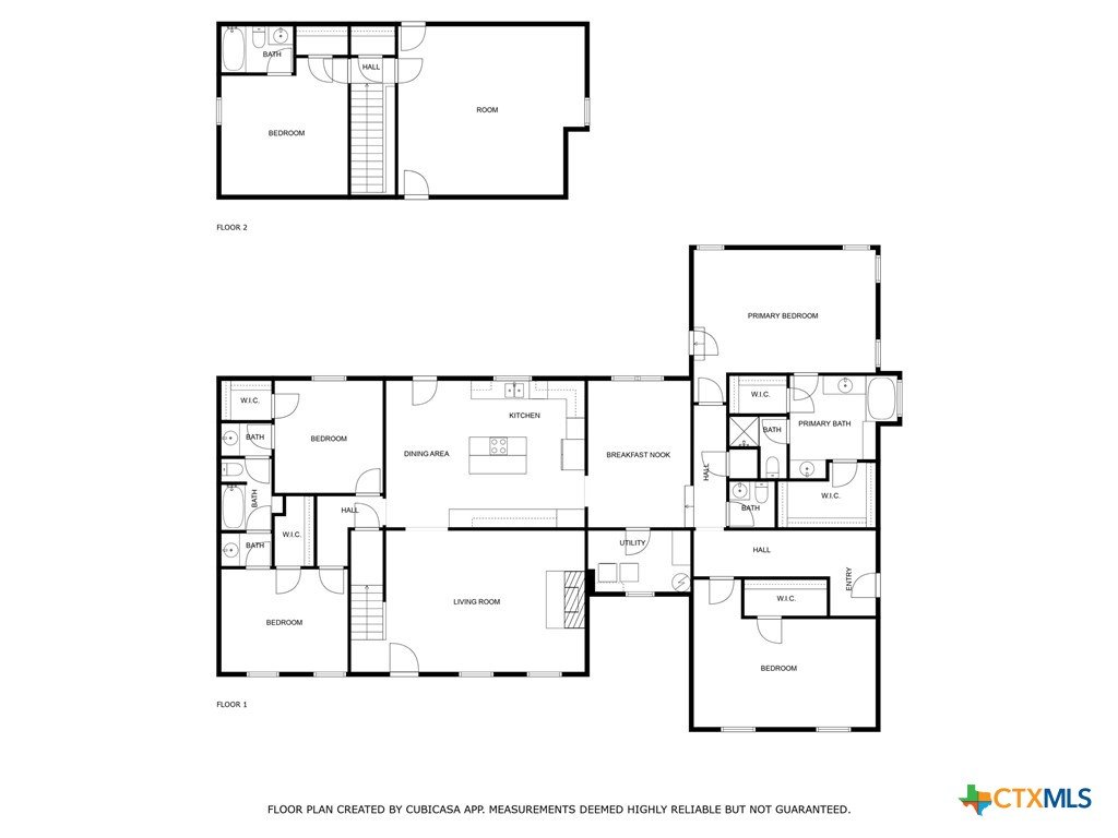
5 3.5 3210
Beds Baths Sq. Ft.
StatusActive
Year Built1996
CountyBell
Flooring
Lot Size21.4
Parking
Total Stories
CoolingElectric, TwoUnits
School District Salado ISD
Schools
FireplaceLivingRoom, WoodBurning
Property Type SingleFamilyResidence

Property Details

Escape to your own private retreat on this beautiful 21.4 acre ag exempt estate at 13391 Cedar Valley. This spacious 5 bedroom 3.5 bathroom home blends rustic charm with modern comfort, featuring a cozy living room with a wood burning fireplace, a large kitchen perfect for gatherings, and a versatile bonus room ideal for a home office, playroom, or hobby space. Natural light fills the home, which sits surrounded by mature trees and peaceful pastureland. A bonus building, which can serve as a guesthouse, includes a bathroom and shower. An approximately 1500 sq ft barn plus stalls and a barn room is ideal for housing animals, storing equipment, or taking on hands on projects. The property also boasts a well house, a carport, garden areas perfect for outdoor living, 16 mulberry trees, 7 peach trees, 2 fig trees, 4 pear trees, and grape vines. Located just a short drive from Harker Heights, with the convenience of Walmart delivery to your door, this property offers both privacy and accessibility. Whether you are dreaming of a country homestead or a peaceful weekend escape, this one of a kind property is ready to welcome you home. ******** Seller will sell the home and 5 acres for $650,000.




Courtesy of First Texas Brokerage Company

This real estate information comes in part from the Internet Data Exchange/Broker Reciprocity Program. Information is deemed reliable but is not guaranteed.
© 2017 San Antonio Board of Realtors. All rights reserved.


,,