143 Laurel Grace

New Braunfels, TX 78130

143 Laurel Grace

New Braunfels, TX 78130

$244,990

19 days, 6 hours, 44 minutes on market
3 2 1475
Beds Baths Sq. Ft.
StatusActive
Year Built2019
CountyGuadalupe
FlooringCarpeting, Laminate
Lot Size0.14
ParkingTwo Car Garage
Total Stories1
CoolingOne Central
School District New Braunfels
Schools Long Creek, New Braunfel, Klein Road
FireplaceNot Applicable
Property Type Single Family Detached
143 Laurel Grace New Braunfels TX 78130

Property Details

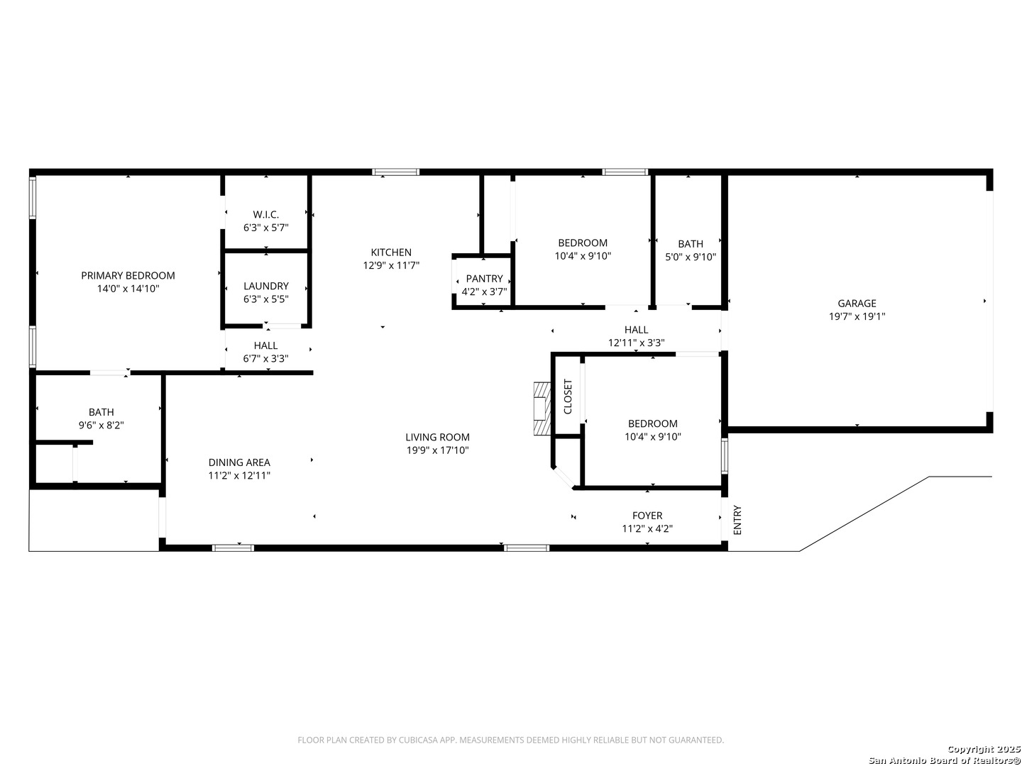
Welcome home to this well-cared-for, one-owner property that offers comfort, style, and effortless single-story living in a quiet, family-friendly neighborhood. The inviting stone exterior, covered front porch, and finished garage create attractive curb appeal and a welcoming first impression. Inside, a spacious open floor plan provides an easy flow for both everyday living and entertaining. The large kitchen is designed to impress with rich dark mocha cabinetry, granite countertops, and an open layout that connects seamlessly to the main living area, making it ideal for gatherings or casual meals. The private primary suite is thoughtfully positioned at the back of the home for added privacy and features durable laminate flooring. Additional living spaces are bright and functional, offering flexibility to suit a variety of lifestyles. Step outside to a great-sized, fully fenced backyard with room to relax, play, or personalize to your needs. Minutes away from Gruene, Creekside, River access, Downtown Shopping, dining and fun, this move-in-ready home is full of charm and perfectly suited for first-time buyers or anyone seeking a comfortable, low-maintenance lifestyle.




Courtesy of Orchard Brokerage

This real estate information comes in part from the Internet Data Exchange/Broker Reciprocity Program. Information is deemed reliable but is not guaranteed.
© 2017 San Antonio Board of Realtors. All rights reserved.


,,