2010 S 49th

Temple, TX 76504

2010 S 49th

Temple, TX 76504

$230,000

  • skyline
  • MLS: #602849
2 months, 5 days, 14 hours, 3 minutes on market
3 2 1961
Beds Baths Sq. Ft.
StatusActive
Year Built1962
CountyBell
Flooring
Lot Size0.2357
Parking
Total Stories
CoolingCentralAir
School District Temple ISD
Schools
FireplaceNone
Property Type SingleFamilyResidence

Property Details

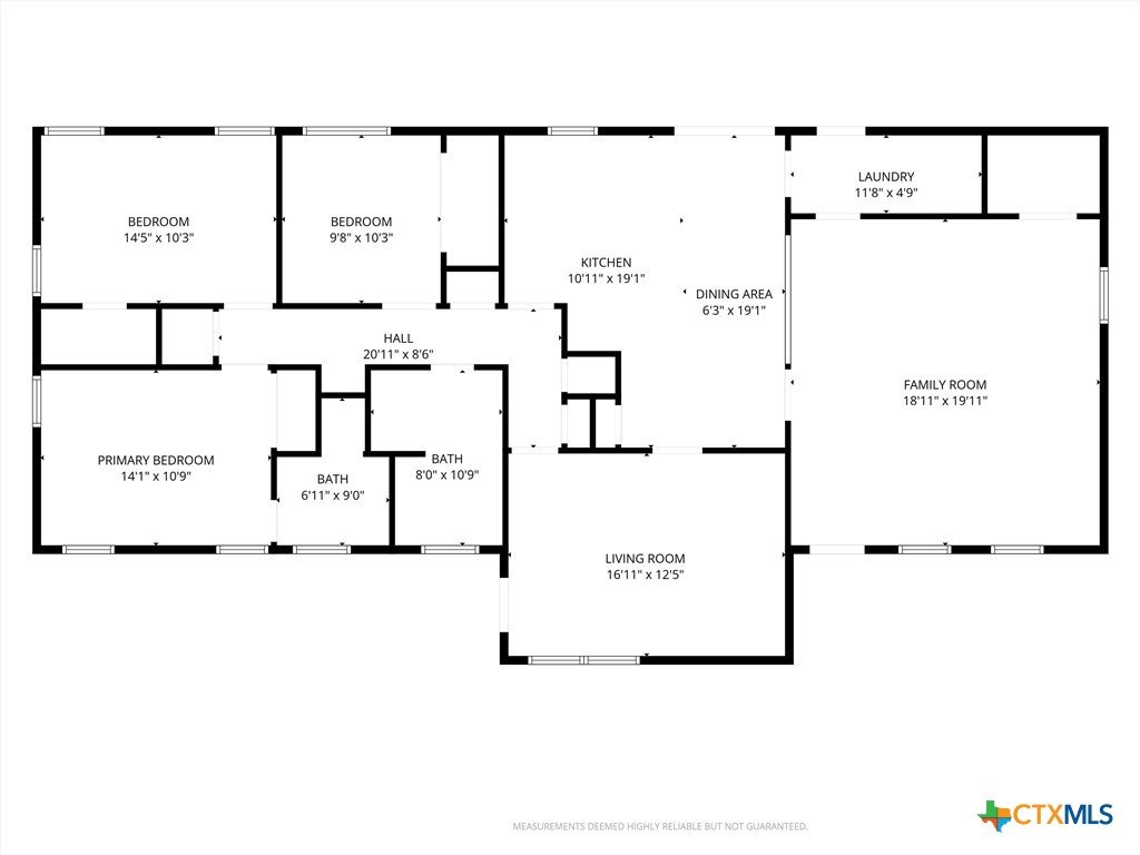
This beautiful ranch-style home, built in 1962, features three bedrooms and two full baths, master suite with a walk-in shower. The property offers a large den with plenty of space and a formal living area that provides versatile options for use. The kitchen features original charm and open shelving to display all your favorite items. Retaining much of its original character, the home includes a large, fenced backyard with ample room for a garden and a storage shed. The location is conveniently situated near Scott & White Hospital and various shopping centers & restaurants, offering easy access to the highway.




Courtesy of Kwls - T. Kerr Property Group

This real estate information comes in part from the Internet Data Exchange/Broker Reciprocity Program. Information is deemed reliable but is not guaranteed.
© 2017 San Antonio Board of Realtors. All rights reserved.


,,