2241 Windswept

New Braunfels, TX 78132

2241 Windswept

New Braunfels, TX 78132

$419,900

1 month, 25 days, 19 hours, 21 minutes on market
4 2.5 2712
Beds Baths Sq. Ft.
StatusActive
Year Built2021
CountyComal
Flooring
Lot Size0.13
ParkingAttached, DoorSingle, GarageFacesFront, Garage, GarageDoorOpener
Total Stories
CoolingCentralAir
School District Comal ISD
Schools
FireplaceNone
Property Type SingleFamilyResidence

Property Details

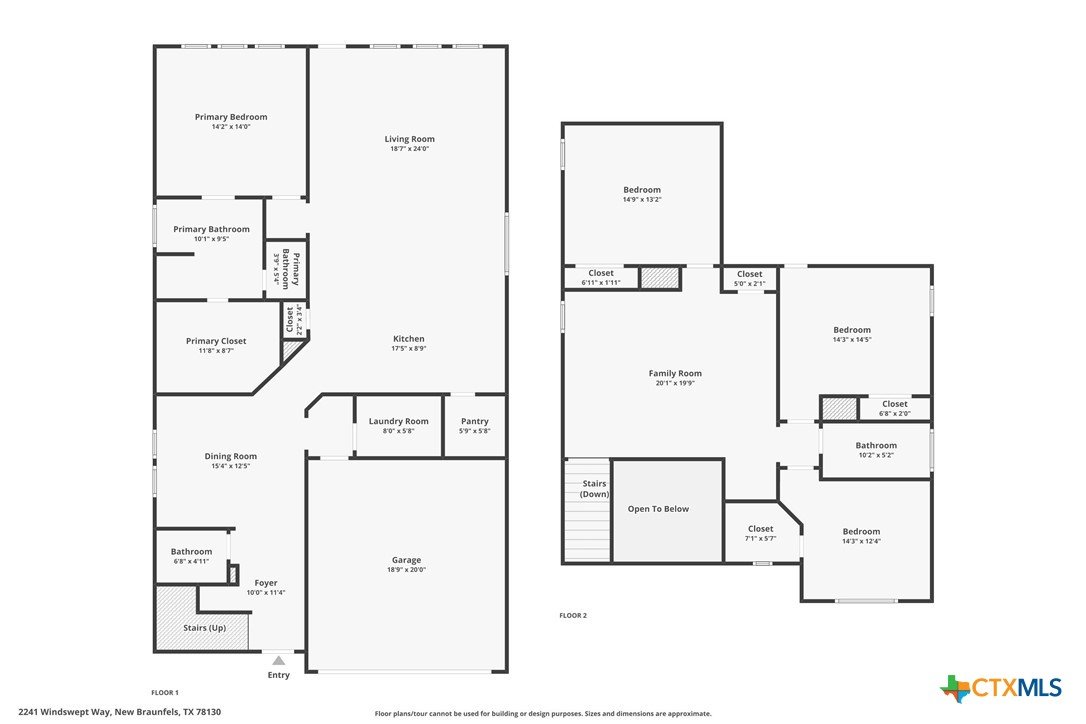
Spacious, Stylish, and Perfectly Located! Step into this beautiful Gehan-built home in the desirable Gruenefield community, offering a practical blend of comfort, space, and convenience. With 4 bedrooms, 2.5 bathrooms, this open-concept floor plan is designed to fit a modern lifestyle. The gourmet kitchen is a standout feature, complete with 42" cabinets, granite countertops, a large island, stainless steel appliances, walk-in pantry, and plenty of prep and storage space. It flows seamlessly into the bright living area, making it ideal for everyday living or entertaining. The primary bed is located on the first floor and features an elegant coffered ceiling. The primary bath includes a double vanity, walk-in closet, large garden tub, and a separate shower. Upstairs, youll find three additional bedrooms and a spacious second living area or game room that works perfectly as an office, entertainment space, media room, or relaxing retreat. Additional highlights include a two-car garage, covered back patio, fenced yard, sprinkler system, and well-maintained community surroundings. This home is perfectly positioned for commuters with easy access to I-35, offering quick travel to San Antonio or Austin. It is also just minutes from Gruene Hall, Creekside, HEB, restaurants, shopping, and local attractions. Whether you're seeking comfort, convenience, or style, this well-located home truly has it all.




Courtesy of Watters International Realty

This real estate information comes in part from the Internet Data Exchange/Broker Reciprocity Program. Information is deemed reliable but is not guaranteed.
© 2017 San Antonio Board of Realtors. All rights reserved.


,,