240 Haby

San Antonio, TX 78253

240 Haby

San Antonio, TX 78253

$599,900

  • haby hill 50s
  • MLS: #1918111
2 months, 9 hours, 51 minutes on market
4 3 2960
Beds Baths Sq. Ft.
StatusActive
Year Built2025
CountyMedina
FlooringCarpeting, Ceramic Tile, Wood
Lot Size0.1377
ParkingTwo Car Garage
Total Stories2
CoolingOne Central
School District Medina ISD
Schools Medina Valley, Loma Alta, Potranco
FireplaceNot Applicable
Property Type Single Family Detached
240 Haby San Antonio TX 78253

Property Details

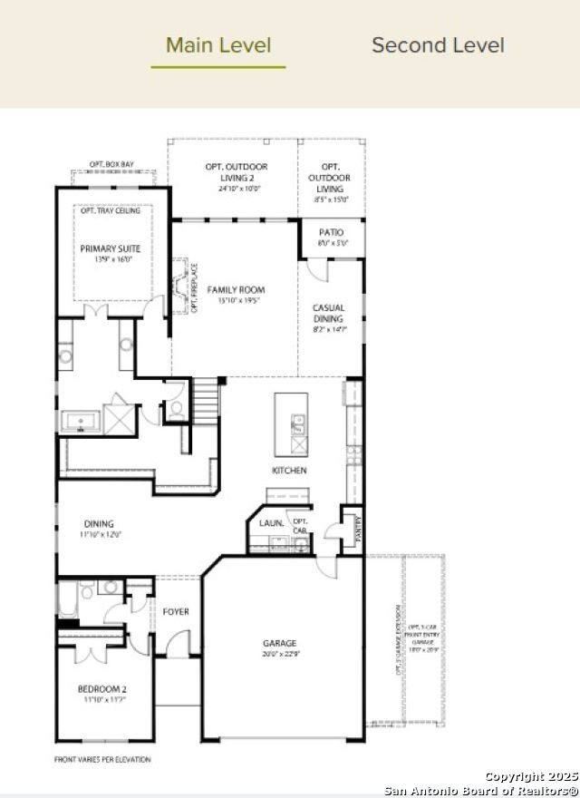
MLS# 1918111 - Built by Drees Custom Homes - Mar 2026 completion! ~ With 2976 square feet of living space and covered patio, this home is designed with your family in mind. The TODD floorplan is a 4 Bedroom and 3 bath home with a great room that opens to the outside patio. The modern kitchen overlooks the great room and is steps away from the formal dining room. The kitchen with its inviting island also offers plenty of cabinets that offer great storage options. The Lewis' primary suite features dual vanities, a freestanding tub, a large shower and a huge walk-in closet that'll make your neighbors envious. The spacious Gameroom greets you on upon entry to the second level of this home, along with two additional bedrooms. Visit us at Haby Hill today and view this new construction home by Drees Custom Homes.




Courtesy of Homesusa.com

This real estate information comes in part from the Internet Data Exchange/Broker Reciprocity Program. Information is deemed reliable but is not guaranteed.
© 2017 San Antonio Board of Realtors. All rights reserved.


,,