254 DENALI

Kyle, TX 78640
Sold

254 DENALI

Kyle, TX 78640

Contact For Sold Price
4 2.5 1822
Beds Baths Sq. Ft.
StatusSold
Year Built2025
CountyHays
Flooring
Lot Size0.226
ParkingAttachedCarport
Total Stories
CoolingOneUnit
School District Hays Cisd
Schools Hays High School, Simon Middle School, Hemphill Elementary
FireplaceNone

Property Details

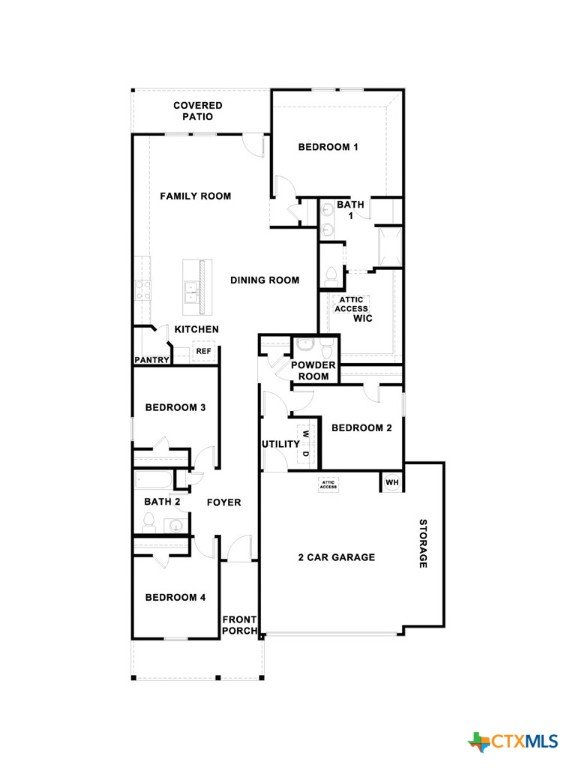
SEPT/OCT ESTIMATED COMPLETION DATE. OVERSIZED LOT! Check out the Harris floorplan, our largest one-story home available at Paramount in Kyle, Texas. Perfect for roommates or larger families, this 4 bedroom, 2.5 bathroom, 2 car garage home offers 1,822 square feet of comfortable living space. Our homes in Paramount feature our modern farmhouse exteriors. At the front of the home, off the foyer, you have two secondary bedrooms and a full bathroom, which includes a shower/tub combination. Moving through the foyer and down a small hall, you will find the half bathroom, utility room and another secondary bedroom. All secondary bedrooms feature a closet with shelving. Whether you use these rooms as an office, child’s room or guest room, there is plenty of space for work, sleep, and play. Making your way through the house, you’ll walk into the heart of the home, the living area. Built as an open concept, move easily between the kitchen, dining, and family room. The L-shaped kitchen includes quartz countertops, a large island with undermount sink, a corner pantry closet, stainless-steel appliances and 36’’ upper cabinets. The primary bedroom is located off the family room. This spacious bedroom will be your oasis at the end of a long day. Enjoy the private bathroom, which features a walk-in shower, marble countertops with dual vanity, separate toilet area with a door, and a large walk-in closet. The Harris includes vinyl flooring throughout the common areas of the home and carpet in the bedrooms. All our new homes at Paramount feature extra storage space in the garage, a covered back patio, full sod, and an irrigation system in the front and back yard. This home comes with our America’s Smart Home base package, which includes Video Front Door Bell, Front Door Deadbolt Lock, Home Hub, Thermostat, and Deako® Smart Switches.




Courtesy of Dr Horton-austin

This real estate information comes in part from the Internet Data Exchange/Broker Reciprocity Program. Information is deemed reliable but is not guaranteed.
© 2017 San Antonio Board of Realtors. All rights reserved.


,,