2909 Oakbranch

New Braunfels, TX 78130

2909 Oakbranch

New Braunfels, TX 78130

$385,000

1 month, 29 days, 14 hours, 24 minutes on market
4 2.5 2182
Beds Baths Sq. Ft.
StatusActive
Year Built2011
CountyComal
Flooring
Lot Size0.16
Parking
Total Stories
CoolingCentralAir, OneUnit
School District Comal ISD
Schools
FireplaceNone
Property Type SingleFamilyResidence

Property Details

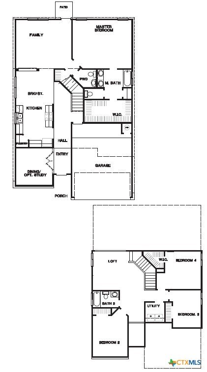
$7000 SELLER CONCESSIONS Discover your perfect blend of comfort and convenience in this beautifully maintained 4-bedroom, 2.5-bath two story home located in desirable Oak Creek Estates in New Braunfels,TX. Ideally situated near restaurants, shopping, and IH-35, this home offers both tranquility and easy access to everything you need. Step inside to find a bright layout with fresh interior paint and thoughtful updates throughout. The primary suite is conveniently located downstairs, offering privacy and comfort, while three spacious bedrooms and a large secondary living area await upstairs-perfect for family, guests, or a media space. A designated work from home office provides the ideal setup for remote work or study. The kitchen features granite counters, an inviting eat-in space, and plenty of storage for everyday living. Walkable great neighborhood with sidewalks and wide streets. Additional highlights include: * Owned solar panels for exceptionally low electric bills(with battery backup and off grid capability) * Soaker hoses around the foundation to maintain stability *Updated Bosch dishwasher *New refrigerator that makes craft ice cubes *Electrolux washer and dryer and a garage Frigidaire fridge/freezer included *Garage has 220 outlet installed * EV charger on it's own circuit *RO system at kitchen sink, connected to fridge for water and ice *Large extended concrete patio with pergola with privacy panels with full electric on the patio and 3 outdoor ceiling fans *New AC evaporator coil and new dual zone duct work *New roof (2023) *New water heater (2020) *New arched window in upstairs bedroom *Two attics for extra storage (storage in Texas is worth its weight in gold!) *HVAC maintenance twice per year. Amenities include a large community pool with play areas for all ages, playground, basketball court and walking paths along the creek. Top-rated Oak Creek Elementary in the neighborhood, Comal ISD. Home is move-in-ready, efficient, and ready to save you money.




Courtesy of Steele Portfolio

This real estate information comes in part from the Internet Data Exchange/Broker Reciprocity Program. Information is deemed reliable but is not guaranteed.
© 2017 San Antonio Board of Realtors. All rights reserved.


,,