409 New Albany

San Marcos, TX 78666

409 New Albany

San Marcos, TX 78666

$299,990

1 day, 12 hours, 4 minutes on market
3 2.5 1852
Beds Baths Sq. Ft.
StatusActive
Year Built2025
CountyHays
Flooring
Lot Size0.112
ParkingAttached, Garage
Total Stories
CoolingCentralAir, OneUnit
School District San Marcos Cisd
Schools San Marcos High School, Doris Miller Middle School, Travis Elementary
FireplaceNone
Property Type SingleFamilyResidence

Property Details

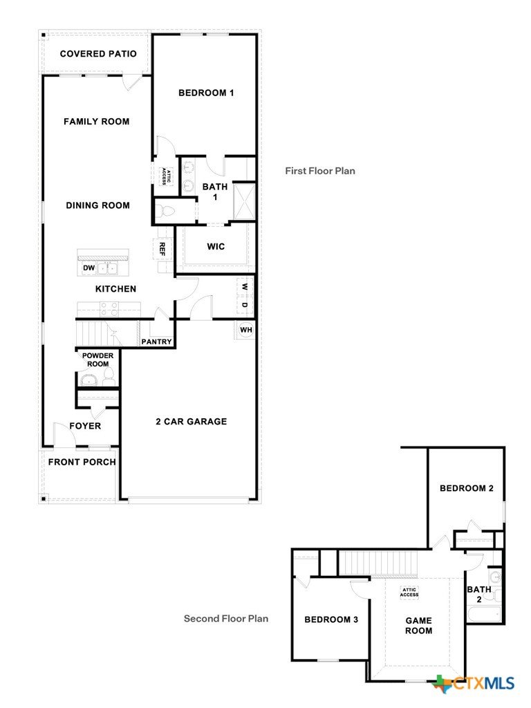
MOVE IN READY! EASY ACCESS TO I-35. Check out the Florence floorplan at Whisper South. This two-story new home has 3 bedrooms, 2.5 bathrooms, a gameroom and a 2 car garage across 1,852 square feet of modern living space. Our homes in Whisper South feature three-sided masonry exteriors. Step inside the home from the covered front porch into the foyer. Passing the powder room and staircase, you’ll enter the kitchen, dining, and family room. This open concept space was built to make cooking, eating, and entertaining a pleasant experience for family and friends. The kitchen features an island with undermount sink, quartz countertops, a pantry closet, 36” upper cabinets, and stainless-steel appliances, including a gas range. Enjoy the natural light from the side and rear windows. The oversized utility room is off the kitchen and connects to the garage, making it the perfect mud room. Completing the downstairs area is the primary bedroom, which includes an attached bathroom. This relaxing bathroom space features a walk-in shower, double vanity with marble counter tops, private toilet area with a door, and a huge walk-in closet. You will have plenty of space in this closet for your accessories and prized possessions. Upstairs are the two additional bedrooms, a full bathroom, and the gameroom. The secondary bathroom includes a shower/tub combination, and all secondary bedrooms have amble closet space. Whether you use these rooms as an office, child’s room or guest room, there is enough room for work, sleep, and play. The Florence includes vinyl flooring throughout the common areas of the home, and carpet in the bedrooms. All our new homes feature a covered back patio, full sod, irrigation system in the front and back yard, and a 6’ privacy fence around the back yard. This home includes our America’s Smart Home base package, which includes the Amazon Echo Pop, Front Doorbell, Front Door Deadbolt Lock, Home Hub, Thermostat, and Deako® Smart Switches.




Courtesy of Dr Horton-austin

This real estate information comes in part from the Internet Data Exchange/Broker Reciprocity Program. Information is deemed reliable but is not guaranteed.
© 2017 San Antonio Board of Realtors. All rights reserved.


,,