5402 S Zarzamora

San Antonio, TX 78211

5402 S Zarzamora

San Antonio, TX 78211

$649,500

3 months, 4 days, 13 hours, 23 minutes on market
StatusActive
Year Built1952
CountyBexar
Flooring
Lot Size0.213
Parking
Total Stories
CoolingCentral
School District Harlandale I.S.D
Schools
Fireplace
Property Type Restaurant/Bar

Property Details

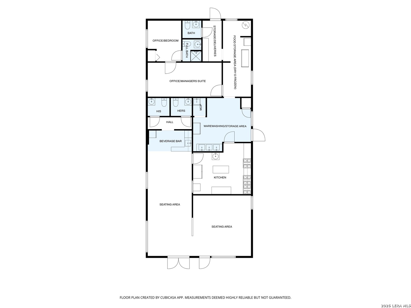
Located in South San Antonio's South Side submarket, this restaurant property sits within a dense, established residential trade area at a signalized intersection along S. Zarzamora, a primary north-south commercial corridor with consistent daily traffic. The building features a commercial-grade kitchen, beverage bar, spacious dining area, two customer restrooms, two employee restrooms, a food storage room, mop sink, warewashing station, manager's suite/office, full bathroom with tiled walk-in shower, and an employee lounge. The sale includes prominent signage, Furniture, Fixtures, and Equipment (FF&E), an existing drive-thru with convenient ingress/egress, a covered service carport, and three combined lots providing additional on-site parking. Zoned C-1, this high-visibility property is an attractive opportunity for owner-operators or investors seeking a turn-key location in a high-traffic San Antonio market.




Courtesy of Keller Williams Heritage

This real estate information comes in part from the Internet Data Exchange/Broker Reciprocity Program. Information is deemed reliable but is not guaranteed.
© 2017 San Antonio Board of Realtors. All rights reserved.


,,