5911 Shale Cove

San Antonio, TX 78222

5911 Shale Cove

San Antonio, TX 78222

$272,500

20 hours, 3 minutes on market
5 2.5 1819
Beds Baths Sq. Ft.
StatusNew
Year Built2025
CountyBexar
FlooringCarpeting, Vinyl
Lot Size0.13
ParkingTwo Car Garage
Total Stories2
CoolingOne Central
School District East Central I.S.D
Schools East Central, Legacy, Sinclair
FireplaceNot Applicable
Property Type Single Family Detached
5911 Shale Cove San Antonio TX 78222

Property Details

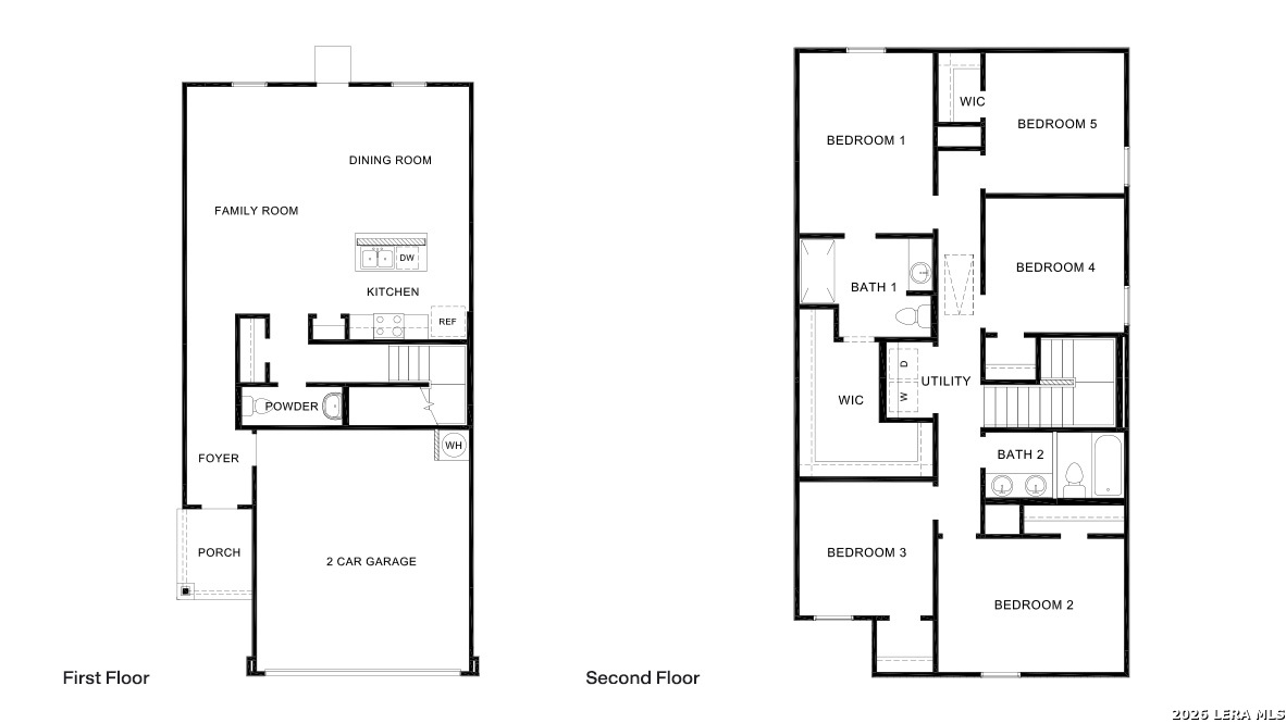
Welcome to The Donna, a two-story home located at Blue Ridge Ranch in San Antonio, TX. This floor plan offers 2 classic exteriors and 2-car garage. Inside this 5 bedroom, 2.5 bathroom home, you'll find 1819 square feet of living space. The entry opens to a spacious family room before flowing into the dining room and kitchen with an open floorplan concept. The kitchen includes quartz counter tops, quality cabinetry, stainless steel appliances, large breakfast island, and pantry. Head up the stairs to find the main bedroom suite, all secondary bedrooms, the laundry room, and a full bath. The Donna layout is perfect if you love entertaining downstairs and relaxing upstairs. The private main bedroom features an attractive ensuite with quality cabinetry. A spacious tiled walk-in shower and large walk-in closet provide all the space and convenience you need. Additional features of The Donna floor plan include sheet vinyl flooring in entry, living room, and all wet areas, quartz counter tops in all bathrooms and HOME IS CONNECTED base package. Using one central hub that talks to all the devices in your home, you can control the lights, thermostat and locks, all from your cellular device.




Courtesy of Keller Williams Heritage

This real estate information comes in part from the Internet Data Exchange/Broker Reciprocity Program. Information is deemed reliable but is not guaranteed.
© 2017 San Antonio Board of Realtors. All rights reserved.


,,