662 -- Hagee Drive

Fredericksburg, TX 78624

662 -- Hagee Drive

Fredericksburg, TX 78624

$2,950,000

2026-05-09
4 4.5 3265
Beds Baths Sq. Ft.
StatusActive
Year Built---
CountyGillespie
Flooring
Lot Size
Parking2 Car, Attached, Garage
Total StoriesTwo
Cooling
School District
Schools Shake,Standing Seam
FireplaceMasonry
Property Type

Property Details

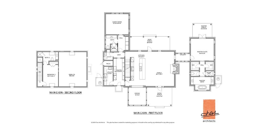
This rustic family compound, set on a .50-acre homesite, resides above the newly constructed Racquet Club. This cabin offers historic design from 19th-century German heritage homesteads but still offers modern sofistication and luxury details. This location in Boot Ranch offers you a quick cart ride to the Racquet Club, Lakeside Village or future Gun Club. Nearby is Longhorn Trail, which will take you South to the Clubhouse, Ranch Club or fitness center. Though just a few steps off the living area, through the private gallery, the master bedroom feels like a separate wing. French doors let in the light, opening to the landscaped back yard with views towards the Racquet Club and play field. The bathroom features double walk-in closets, his and her vanities, a generous shower and a free-standing tub. The garage features room for 2 cars and golf cart. Above, up the staircase, is the 2nd-story guest suite. The builder has included in the plans, off the entry courtyard, a two-bedroom stone guest house. This guest house is not included in the purchase price. Don't miss your opportunity to become part of Boot Ranch, the finest private club community in Texas.




This real estate information comes in part from the Internet Data Exchange/Broker Reciprocity Program. Information is deemed reliable but is not guaranteed.
© 2017 San Antonio Board of Realtors. All rights reserved.


,,