7223 Rosada Way

San Antonio, TX 78218

7223 Rosada Way

San Antonio, TX 78218

$224,000

  • northeast crossing
  • MLS: #1949741
1 month, 21 days, 21 hours, 31 minutes on market
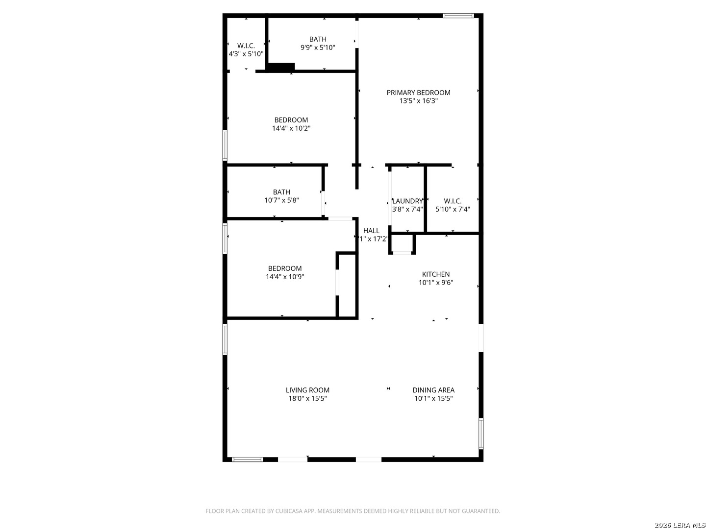
3 2 1450
Beds Baths Sq. Ft.
StatusActive
Year Built2021
CountyBexar
FlooringCarpeting, Ceramic Tile
Lot Size0.114
ParkingTwo Car Garage
Total Stories1
CoolingOne Central
School District North East I.S.D.
Schools Roosevelt, Robert G Cole, Camelot
FireplaceNot Applicable
Property Type Single Family Detached
7223 Rosada Way San Antonio TX 78218

Property Details

Impeccably well cared for 3 Bdrm 2 Bath Open Concept 1 Story Home. Granite and Stainless Kitchen. Unbelievably quiet inside. BBQ Patio just off the Kitchen/Dining. A front porch made for Morning Coffee. Easy care lawn with Sprinkler System. The nicest AND most affordable home in the neighborhood! Come see us soon!




Courtesy of Keller Williams City-view

This real estate information comes in part from the Internet Data Exchange/Broker Reciprocity Program. Information is deemed reliable but is not guaranteed.
© 2017 San Antonio Board of Realtors. All rights reserved.


,,