7940 Kennedy Hill

San Antonio, TX 78235

7940 Kennedy Hill

San Antonio, TX 78235

$340,000

5 days, 8 hours, 9 minutes on market
2 2.5 1532
Beds Baths Sq. Ft.
StatusNew
Year Built2023
CountyBexar
FlooringCarpeting, Ceramic Tile, Wood
Lot Size0
ParkingTwo Car Garage, Attached, Tandem
Total Stories3+
CoolingZoned
School District San Antonio I.S.D.
Schools Call District, Call District, Call District
FireplaceNot Applicable
Property Type Townhome

Property Details

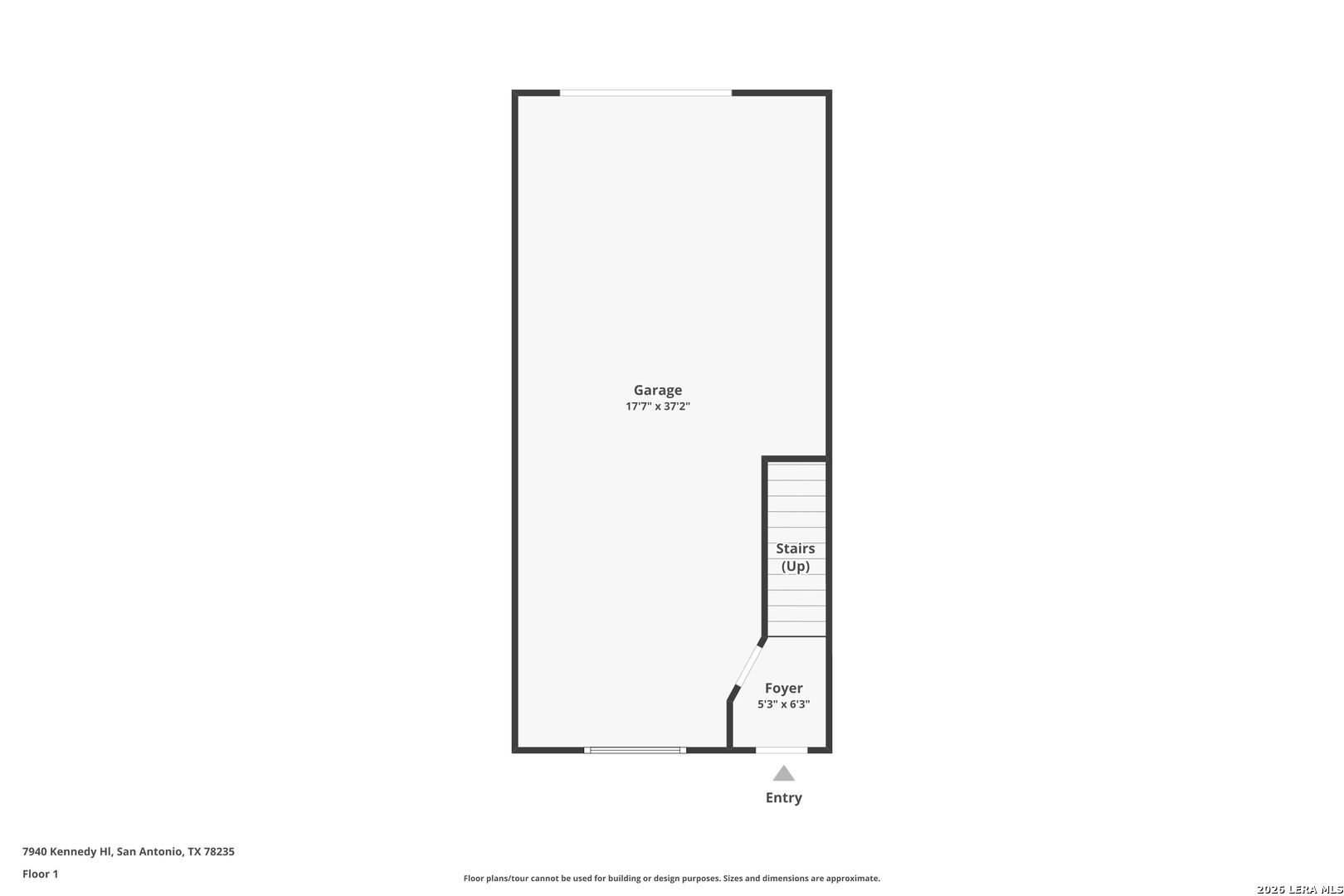
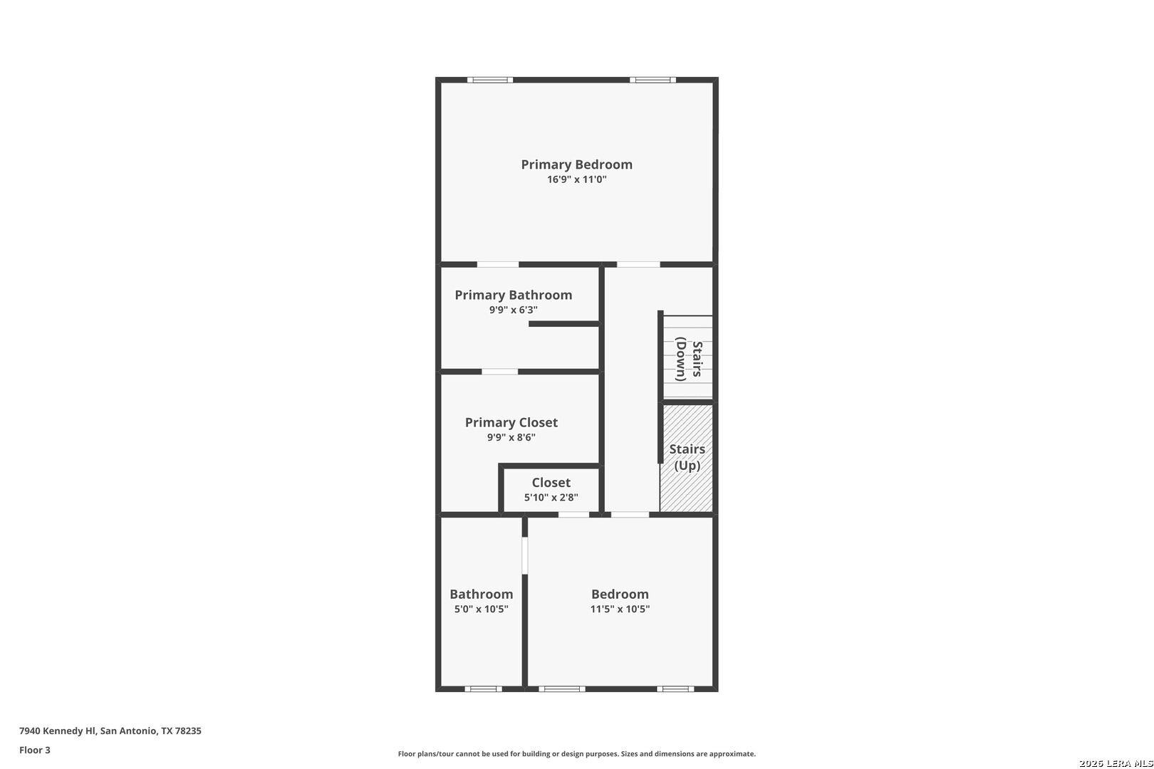
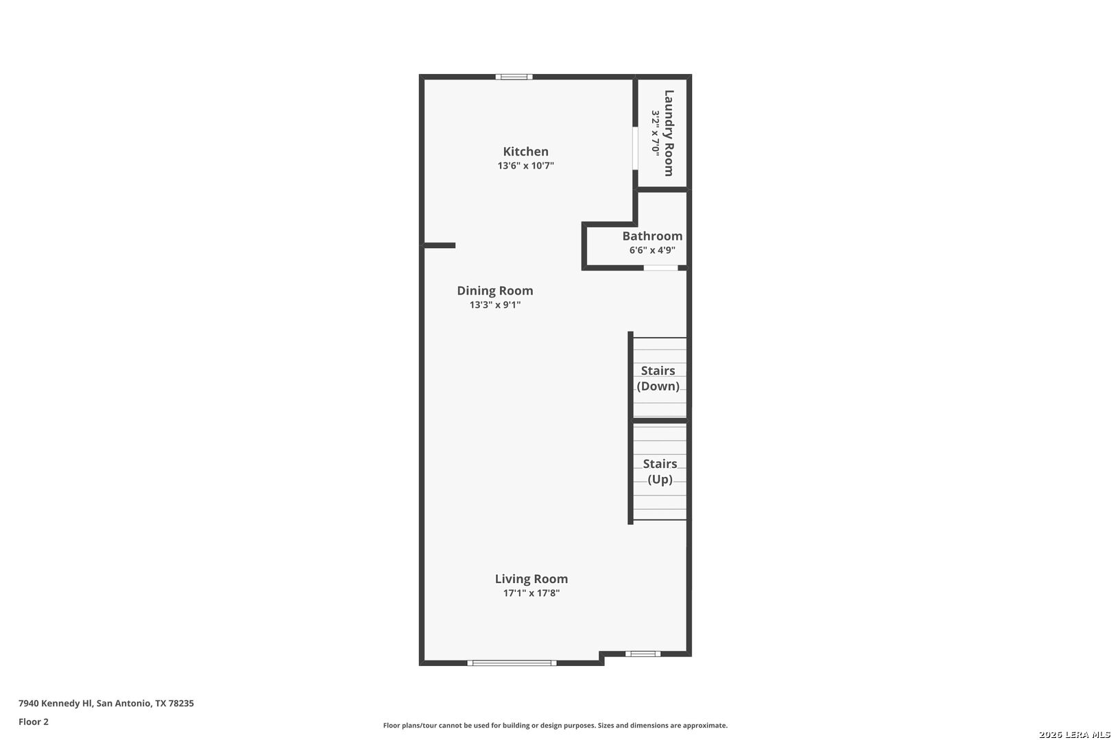
OPEN HOUSE: Sunday, 02/15 11 AM - 3 PM! ROOFTOP Living at Brooks City Base! Experience elevated urban living at Southlake at Brooks, an exciting new townhome community overlooking the Greenline Park and waterfront. This modern 2-bedroom townhome features an open-concept layouts, designer kitchens with stainless steel gas appliances, and spacious bedrooms with en-suite baths. This 1,532 sq ft floor plan offers two bedrooms, two full en-suite bathrooms, a half bath, and an attached two-car garage. The first floor has the 2 car garage and stairs going to the second floor. The second floor is designed for entertaining, showcasing a large living and dining area, a massive kitchen, and a convenient half bath for guests. The third floor features a full-sized owner's suite with beautiful windows overlooking downtown, along with an additional secondary bedroom and bath. Enjoy a private rooftop terrace with scenic views of Greenline Park, perfect for relaxing or entertaining at sunset. Located within the rapidly growing Brooks community just south of downtown San Antonio, Southlake is the first for-sale residential offering on the campus, spanning over five acres with 60 homes. Minutes from dining, shopping, and future retail and entertainment developments, this low-maintenance home blends modern style, comfort, and convenience.




Courtesy of Real Broker, Llc

This real estate information comes in part from the Internet Data Exchange/Broker Reciprocity Program. Information is deemed reliable but is not guaranteed.
© 2017 San Antonio Board of Realtors. All rights reserved.


,,