9321 Boiling Rapid

San Antonio, TX 78254
Off Market

9321 Boiling Rapid

San Antonio, TX 78254

Contact For Sold Price
4 3 2411
Beds Baths Sq. Ft.
StatusSold
Year Built2020
CountyBexar
FlooringCarpeting, Ceramic Tile
Lot Size0.156
ParkingThree Car Garage, Attached
Total Stories1
CoolingOne Central
School District Northside
Schools Harlan HS, Straus, Henderson
FireplaceNot Applicable

Property Details

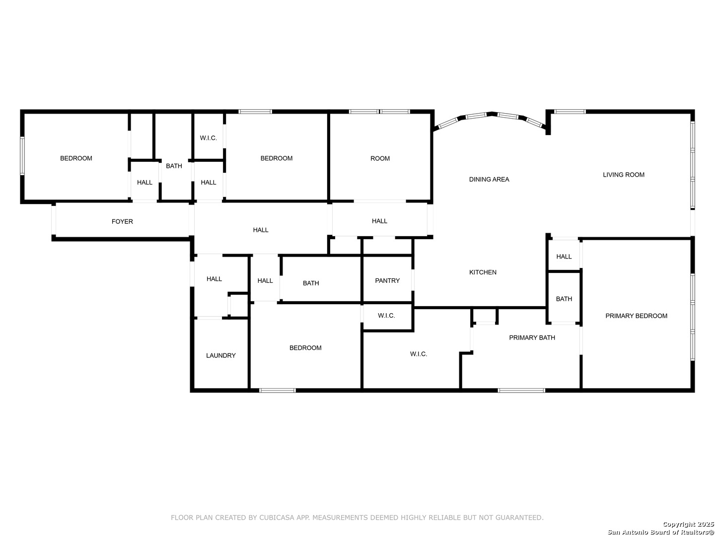
*ASSUMABLE VA LOAN AT 3.25* Nestled in popular Kallison Ranch, this single story Perry home built in 2020 offers four bedrooms, three bathrooms, study and a three car garage. Thoughtful design touches include a mudroom off the garage and an extended covered patio. Upon entry, a guest room and secondary bedroom are located on the left. While two additional bedrooms and a versatile study, currently used as a gym, offer flexible living space. The kitchen features stainless steel appliances, expansive quartz counters, and a large island that opens on to the dining and living areas. The primary suite is generously sized, with a spa like ensuite bath and walk in closet. Enjoy friendly neighbors and Kallison Ranch's fantastic amenities, which include resort style pools, a dog park and playground. This home is zoned to exemplary Northside schools including an onsite elementary school. With easy access to 1604 and 211, close proximity to entertainment, shopping and restaurants, this home is a must see!




Courtesy of Coldwell Banker D'ann Harper

This real estate information comes in part from the Internet Data Exchange/Broker Reciprocity Program. Information is deemed reliable but is not guaranteed.
© 2017 San Antonio Board of Realtors. All rights reserved.


,,